754-234-4789
“Life is too short for an all-beige room”
Luxury Interior Design | Kitchen Remodeling |Home Renovation | Impact Windows
"Mediterranean Italian Villa"
Please note that this page is the same as my blog by the same name "Mediterranean Italian Villa"
Beware, this client’s story has a surprise ending that will create a “To be continued” situation -
My first meeting with John and Veronica was at their beautiful large condo over looking the Fort Lauderdale beach. They explained to me that this was their vacation home that they had remodeled two condos into one large one. John had also explained to me that during his college years, he spent a lot of time with his family in the Fort Lauderdale and Boca Raton areas.
John told me that he had purchased an original Fort Lauderdale home on the Intercoastal waterway and had plans to knock it down and rebuild his vacation home. When I asked him what style of interior and architectural design he was considering he told me that they had just spent the summer in Tuscany and was looking to create an Old World / Mediterranean Italian Villa with hints of the Bahamas / British Colonial style.
I was extremely excited and once we had a signed contract, he introduced me to his team of Architects and Builder who told me that they were more comfortable designing within a more contemporary style. As anyone who has designed and built a custom home before, they know that their are many revisions before you reach your final dream home.
Below are the architectural floor plans when I started working with the team. As they say “First impressions make lasting impressions” or was that just my mother? - I must say, they did design a grand foyer - the problem was that it was to a walkway that looked out through a pair of french doors, to what I would imagine would be a round patio table and chairs next to a swimming pool shoved into the patio -
Upon my arrival, we began redesigning the entire floor plan staring with the addition of a living room - As Joan says “Put a LIVING ROOM, where a LIVING ROOM OUGHT to be”! We pushed out the bedrooms to the set back which allowed us a space for his office and opened up the living space and enhance the living room - FYI, the client asked me to design custom barn doors for the office and beyond I can see Pecky Cypress half paneled walls with the upper walls having a full Trope L’oeil mural of the Tuscan wine country, I would convert the walk-in closet as wine storage behind a glass and wrought iron door. With traditional custom built cabinetry the desk being in the center of the room and will have a hydraulic lift to raise the desktop to bar height for wine tasting parties - and of course all of this under a beautiful custom coffered ceiling with large built up crown moldings.
I also wanted the stairs open to the living room giving us the opportunity to use Mediterranean wrought iron railings and painted porcelain tiles for a little bit of Moroccan Style not to mention the view of the living room as you walk down the stairs. This layout also gave me windows flanking the doors that I knew I could later enhance once I started working on the interior design elements. By relocating the pool to the backyard it extended the patio area and gave us room for not only an outdoor kitchen but also a cabana bathroom.
I give my clients credit for including their interior designer while the architectural drawings are still being revised -
I am very detail oriented and a bit of a control freak meaning that with my architectural background (Note: I am not an architect only a designer) I can see in 3 dimension and I look for where we can use architectural elements and make feature walls. I also love tending to my clients needs and and reviewing all of the possibilities while creating their vision for their home.
At this time I can also design the custom cabinetry for the kitchen, bar, office / library, and baths - place architectural elements such as columns and arches, even the ceiling beams in the family room I have equally spaced to line up with the stone columns and french doors including electrical for the LED lights built into the beams to light up the wood ceiling. Speaking of ceilings, I love to work on the electrical and reflected ceiling plans - This allows me not only to spec out the location of chandeliers and sconces but also accent lighting, ceiling spot lights to showcase artwork, exterior lights including patio, pool, accent walls, landscaping, dock lights and even holiday lights if needed.
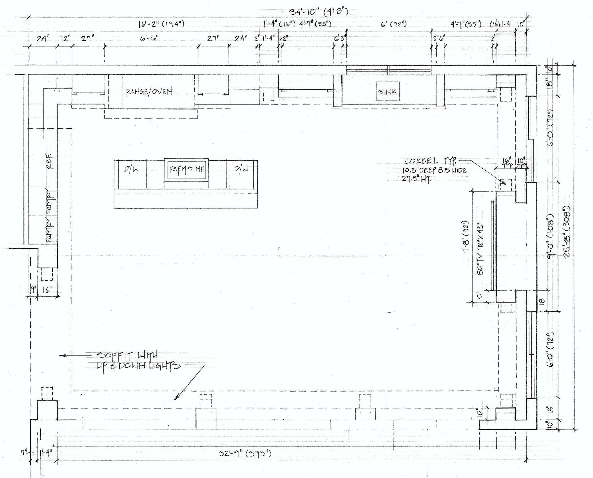
My floor plan showing the kitchen and bar layout as well as placement of the stone columns, soffit with lighting and crown at perimeter of the room
Thus far we have the basic lay-out and architectural floor plan with the front elevation - This is where I begin to start with the interior design of the Family / Great room and I design the custom kitchen cabinetry with an Old World, Traditional, Mediterranean style and influences, including the appliance locations, farm sink at the island, large stone hearth over the range including a pot faucet.
Inspiration for the bar stain glass window
In the Great / Family Room I designed a wall of cabinetry including a bar with a large stain glass window - What Old World Pub doesn’t have a stain glass window ?
Elevation of Old World / Traditional Kitchen / Bar cabinetry featuring stone hearth, columns and shell corbels with soffit detail
Francois “Toscany” carved stone range hood with a matching hearth for the fireplace
Thus far we have the basic lay-out and architectural floor plan with the front elevation - This is where I begin to start with the interior design of the Family / Great room and I design the custom kitchen cabinetry some styles borrowed form the Old World - Traditional and Mediterranean including influences from an old 19th century Italian villa kitchen with stone range hood over the 66” Viking “Tuscany” range.
One of my favorite features in the Old World - Traditional kitchen that truly does give the interior design that Italian Villa style is the Francois “Toscany” stone range hood and fireplace mantle.
Stone fireplace with matching carved stone mantle flanked by sone columns with shell corbels
Stacked natural stone columns with shell corbels flanking all doorways and enteric to Great Room
This client coming from Tuscany, Italy had visions of his Fort Lauderdale vacation home, we were combining both old world charm mixed with some Italian / Mediterranean elements - My client told me that he wanted the exterior walls to be covered in cut natural stone (Please see the front elevation)
I love to mix textures through out the home and bringing the outside in as well as extending the living space to the exterior.
I believe I achieved this buy incorporating the same stone on the grand fireplace with featuring a carved stone mantle that matches the range hood in the kitchen. I took this a step further by flanking all of the doorways and the entrance to the great room with matching stone columns with a carved shell corbel. These columns also support a decorative soffit with a two part crown molding that houses spotlights down on the beautiful draperies and LED strip lights that will aluminate the tongue and grove wood ceiling (Please see Kitchen elevation)
The picture to the left is a design inspiration the client sent me in regards to the large wood beams that they envision for their south Florida custom vacation home on the Fort Lauderdale Intercoastal waterway
With my clients extensive travels they find it necessary to use a dog create and it gives their dog stability and comfort - They sent me the picture to the left to inspire me to incorporate a built in create. Of course I took it a step further and not only added the Mediterranean wrought iron door but also added a matching display for china or wine storage siting on a black granite shelf.
Through out the process of designing my clients custom vacation home, they would refer to it as the “Dog House” upon my asking they explained that their current condo that they had remodeled by combining two condos into one large condo over looking Fort Lauderdale beach did not welcome their dog - Hence they bought an old original home on the Fort Lauderdale intracoastal waterway to knock down and build their “Dog House” - I Love It !
In order to submit the architectural plans to the city, I proceeded to design the swimming pool / hot tub and dock area. To allow for more usable patio space I relocated the pool / hot tub to be parallel to the back of the home with steps down to the dock level that has a seating area and water fall from the infinity edge pool.
I continued with the same design elements that was incorporated with the interior design being a tile decorative privacy wall with a shell fountain flanked by matching stone columns with hanging lanterns - as you can see through out the patio layout I have incorporated tile walls and stone columns toped with planters.
