754-234-4789
“Life is too short for an all-beige room”
Luxury Interior Design | Kitchen Remodeling |Home Renovation | Impact Windows
Mediterranean Revival Design-Build
in Boca Raton
From Waterfront Property to Mediterranean Revival Estate
Every custom home project has a defining moment. This one began with a vision and evolved into a true design-build transformation in Boca Raton.
My first meeting with John and Veronica took place at their expansive beachfront condominium overlooking Fort Lauderdale beach. They had thoughtfully combined two units into one large vacation residence and were no strangers to renovation. During our conversation, John shared that he had deep ties to both Fort Lauderdale and Boca Raton.
He then revealed the real opportunity: he had purchased an original waterfront home on Boca Raton’s Intracoastal Waterway with plans to demolish and rebuild from the ground up. The goal was to create a custom vacation home rooted in Old World Mediterranean Revival architecture with an Italian Villa aesthetic.
We agreed his project would required a fully integrated design-build approach.
Architectural Reconfiguration | Boca Raton Design-Build
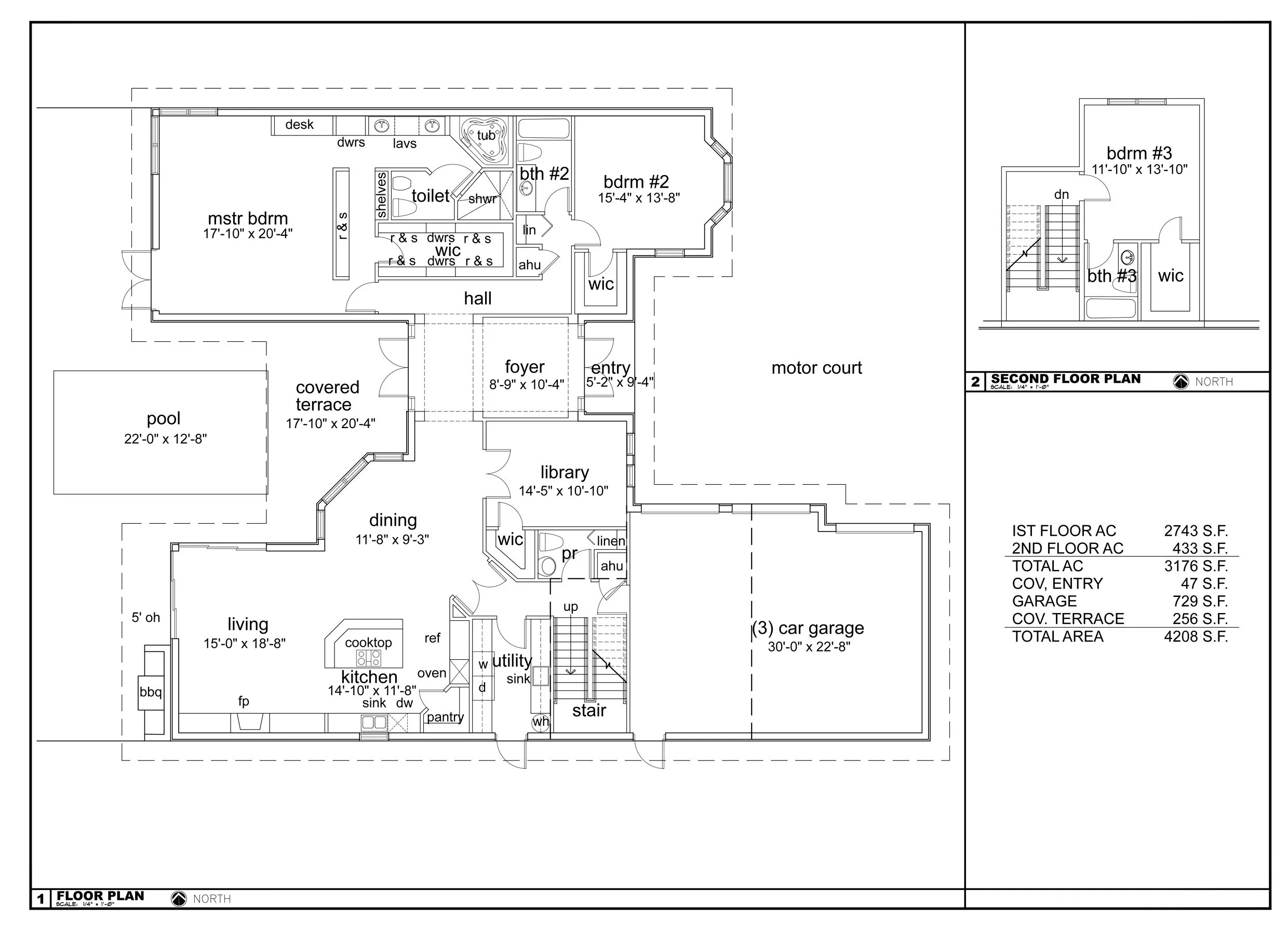
Upon engagement, we immediately began working in collaboration with the project architect to reconfigure the architectural floor plan. The existing layout lacked a proper living room, so the first priority within the design-build process was to introduce a correctly proportioned living room aligned with the home’s Mediterranean Revival style.
Fist Floor Plan presented by Architect
Second Floor Plan presented by Architect
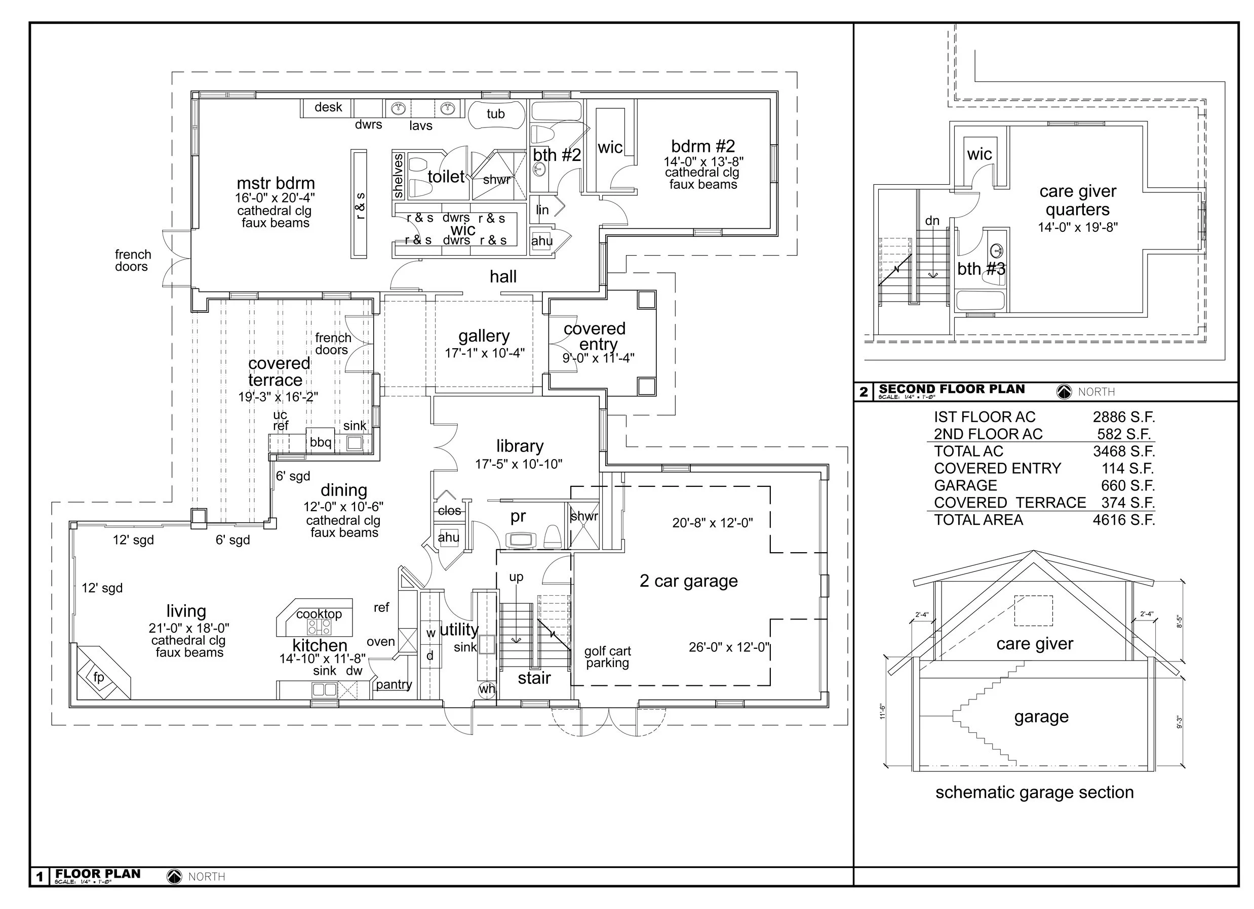
Final Architectural Floor Plan as per our Design-Build
As part of our Boca Raton design-build process, the bedroom wing was extended to the allowable setback, recalibrating the home’s architectural footprint that increased our interior square footage.
The revised floor plan introduced:
A central formal living room overlooking the Intracoastal
Expanded entry elevation with flanking windows for symmetry
An architecturally integrated office and wine room
Enlarged terrace with outdoor kitchen and cabana bath
Reconfigured family and dining spaces with wraparound glass doors
Beamed cathedral ceiling for Mediterranean volume
Grand fireplace with flanking doors for symmetry
Redesigned kitchen with dedicated bar area
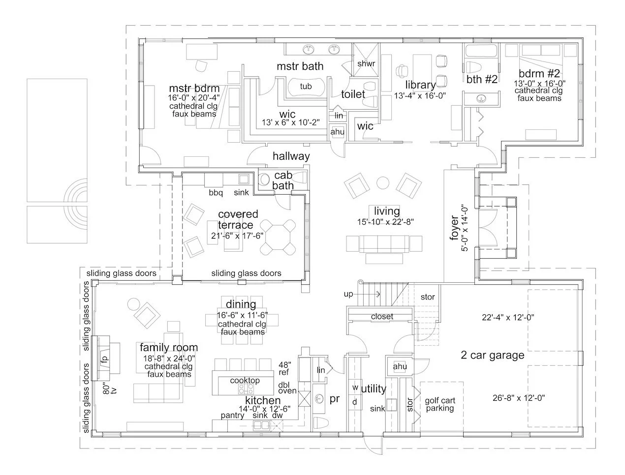
Mediterranean Revival Architecture in Boca Raton
The revised floor plan draws from historic Mizner Mediterranean Revival estates throughout Boca Raton, emphasizing:
Classical symmetry
Indoor–outdoor integration
Mediterranean elements including stone and natural wood
Redesigned Mediterranean staircase
Cathedral ceiling detail with wood beams
Rather than applying decorative elements, this project integrates Mediterranean architecture at the planning level.
I redesigned the stair layout to open directly into the living room, allowing for Mediterranean wrought iron railings and painted porcelain tile risers with subtle Moroccan influence. The open descent enhances the architectural view of the living space below and reinforces vertical connection.
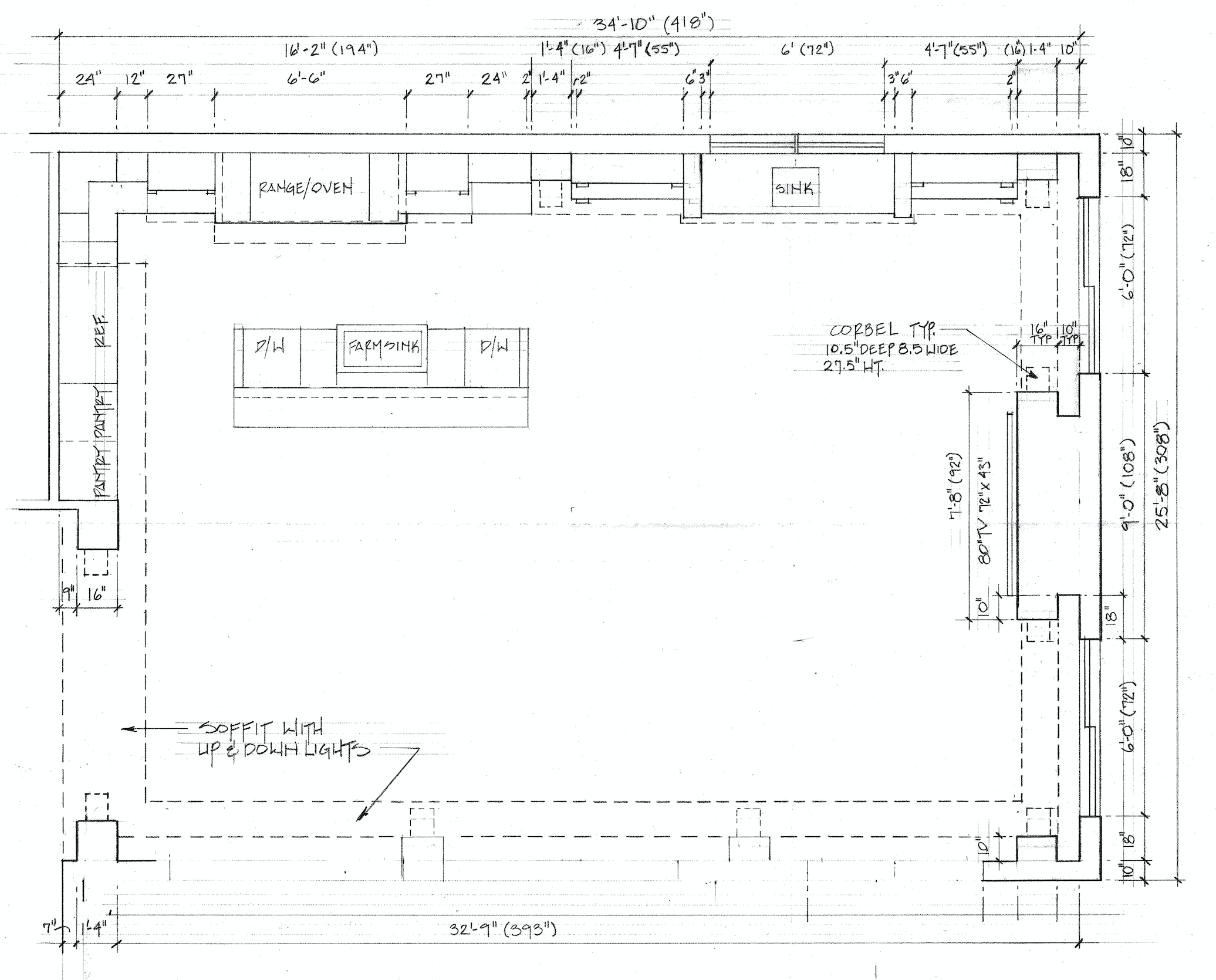
Traditional Old World Custom Kitchen and Bar Design
At this phase of the Boca Raton design-build process, I establish the interior architectural elements, beginning with stone columns detailed with carved shell corbels. These columns are strategically positioned to define spatial zones while discreetly pocketing drapery panels when open, serving as a classic Mediterranean Revival symmetry.
The custom kitchen and bar design feature handcrafted cabinetry, integrated millwork, and natural stone surfaces that reinforce classical proportion and Old World craftsmanship. Every element is aligned with Mediterranean Revival architecture, creating a cohesive interior suited to Boca Raton’s coastal estate character.
Lighting Design and Architectural Reflected Ceiling Plan
I also work extensively on the electrical and reflected ceiling plans with the architect as part of the integrated design-build process. This level of coordination ensures precise lighting placement within the continuous soffit, detailed with deep crown molding that conceals both recessed downlights and uplighting to wash the wood vaulted ceiling.
Each structural beam is further integrated with concealed LED accent lighting, creating ambient illumination that reflects softly across the ceiling plane. The result enhances architectural depth, highlights Mediterranean Revival detailing, and reinforces the layered ceiling design central to the overall composition.
One of the defining features of this Old World traditional kitchen—and a key element in achieving the Italian Villa character—is the François “Toscany” carved stone range hood (Link) and matching fireplace mantel. The substantial stone surround introduces classical weight, Old World craftsmanship, and Mediterranean Revival authenticity, anchoring the kitchen within the architectural language of a Tuscan-inspired estate.
Coordination Within a Boca Raton Design-Build Project
True design-build coordination is exemplified through the collaboration between client, architect, contractor and designer, particularly when translating inspiration into architectural reality.
The client’s reference image featured a wood ceiling with exposed beams inspired by Mediterranean Revival architecture. Through coordinated architectural planning, structural review, and ceiling framing adjustments, and cohesive lighting integration, we transformed that inspiration into a fully integrated design-build solution.
Architectural Details with in a Design-Build Project
The clients shared an inspiration image of a built-in dog crate, asking that it be thoughtfully incorporated into the architectural design.
Through our design-build approach, I elevated the concept beyond a simple enclosure. The built-in crate was detailed with a custom Mediterranean wrought iron door, integrating it seamlessly into the millwork rather than treating it as an afterthought. To maintain architectural symmetry, a complementary wine niche was added above resting on a granite shelf that ties into the surrounding stone elements.
The result preserves functionality while reinforcing the Old World craftsmanship reminiscent of a Mediterranean Revival residence.
Mediterranean Revival Pool, Patio & Dock Design
As part of the project team, I developed the architectural layout for the swimming pool, spa, and dock in preparation for the architect to submit to municipal planing and zoning. To maximize functional patio space and strengthen alignment with the residence, the pool and hot tub were repositioned parallel to the rear elevation of the home.
Boca Raton Design-Build Exterior Coordination
This reconfiguration allowed for a more expansive terrace while introducing stepped transitions down to the dock level, where a dedicated seating area captures waterfront views. An infinity-edge detail was incorporated to create a visual connection between the pool and waterway, enhanced by a cascading waterfall element.
To maintain Mediterranean Revival continuity, the exterior architecture mirrors the interior detailing. A decorative tile privacy wall with a carved shell fountain becomes a focal point, flanked by matching stone columns with suspended gas lanterns. Throughout the patio composition, tile-clad walls and stone columns topped with planters reinforce symmetry, material consistency, and Old World architectural character.
The result is a cohesive indoor–outdoor Mediterranean Revival environment, fully integrated within the Boca Raton design-build framework.
Exterior Coordination with Mediterranean Revival Interior Design
Within the Boca Raton design-build framework, the architect and I carefully coordinated the exterior architectural elements to ensure continuity with the Mediterranean Revival interior design. Material selections included natural stone, exposed wood beams, traditional shutters, and proportioned doors and windows were all developed to reinforce classical symmetry and Old World authenticity.
As reflected in the architectural site plan, the exterior also incorporates a Mediterranean/Tuscan-inspired courtyard anchored by a fountain. This courtyard serves as a transitional architectural space, strengthening axial alignment and enhancing the indoor–outdoor experience characteristic of Mediterranean Revival estates in South Florida.
Integrated Design-Build Process in Boca Raton
This Boca Raton design-build project reflects full coordination between client, architect, contractor, and designer from setback compliance and structural reconfiguration to custom millwork, ceiling framing, and architectural detailing.
Through this integrated design-build approach, Mediterranean Revival architecture was preserved at every stage of planning and construction. The result is a cohesive Boca Raton residence grounded in architectural integrity, classical proportion, and modern construction standards.
