754-234-4789
“Life is too short for an all-beige room”s
Luxury Interior Design | Kitchen Remodeling |Home Renovation | Impact Windows
Design-Build Contractor Project in Boca Raton | Mediterranean Revival Home
Where vision meets design in the Mediterranean home remodel
This Boca Raton design-build project showcases a fully integrated approach to custom home remodeling, combining architectural planning, interior design, and construction under one unified process. As a design-build contractor, Marcus Mars Interiors managed every phase of the project, ensuring seamless coordination between design intent, architect, general contractor, and construction execution.
Located in Boca Raton, this Mediterranean Revival home reflects a balance of timeless architectural detailing and modern luxury living. From initial concept development and space planning to custom finishes and structural execution, the project demonstrates the advantages of a design-build approach with efficiency, precision, and elevated design continuity.
The result is a cohesive residence where architecture, interiors, and construction are aligned from start to finish
To learn more about our Design-Build Home Remodeling Process (Link)
Design-Build Mediterranean Tuscan Home Transformation
This Boca Raton design-build project transforms a standard South Florida property into a refined Mediterranean Tuscan retreat through a fully integrated approach combining architectural design, interior design, and construction oversight.
The project includes a two-story guesthouse, outdoor kitchen and BBQ area, stone gazebo, and a central pool designed as the focal point of the residence. Originally developed without cohesive architectural direction, the home presented design inconsistencies, functional challenges, and construction coordination issues.
As a design-build firm, our role is to unify the project by aligning architecture, interiors, and construction into a single vision. By introducing structured planning, clear communication, and design continuity, we ensure the home reflects both the client’s lifestyle and long-term value.
Architectural and Interior Design Integration
This custom home design-build approach redefines the property with authentic Mediterranean architectural elements and curated interior detailing. Key features include natural stone walls and columns, fireplace, arched stone ceilings, Pecky Cypress ceilings, wood beams, and custom wrought-iron stair railings and panels. Interior spaces are layered with warm textures, hand-crafted materials, and a cohesive palette inspired by Old World Tuscan villas.
Custom millwork, integrated wine storage, and architectural focal points are designed in tandem with construction, ensuring seamless execution from concept through completion.
The Design-Build Advantage
This project demonstrates the value of a design-build contractor managing architecture, interior design, and construction under one unified process. The result is a cohesive, well-executed residence where design intent and construction quality are aligned from the outset.
By integrating all disciplines, we eliminate common project challenges, streamline decision-making, and deliver a higher level of craftsmanship and design continuity.
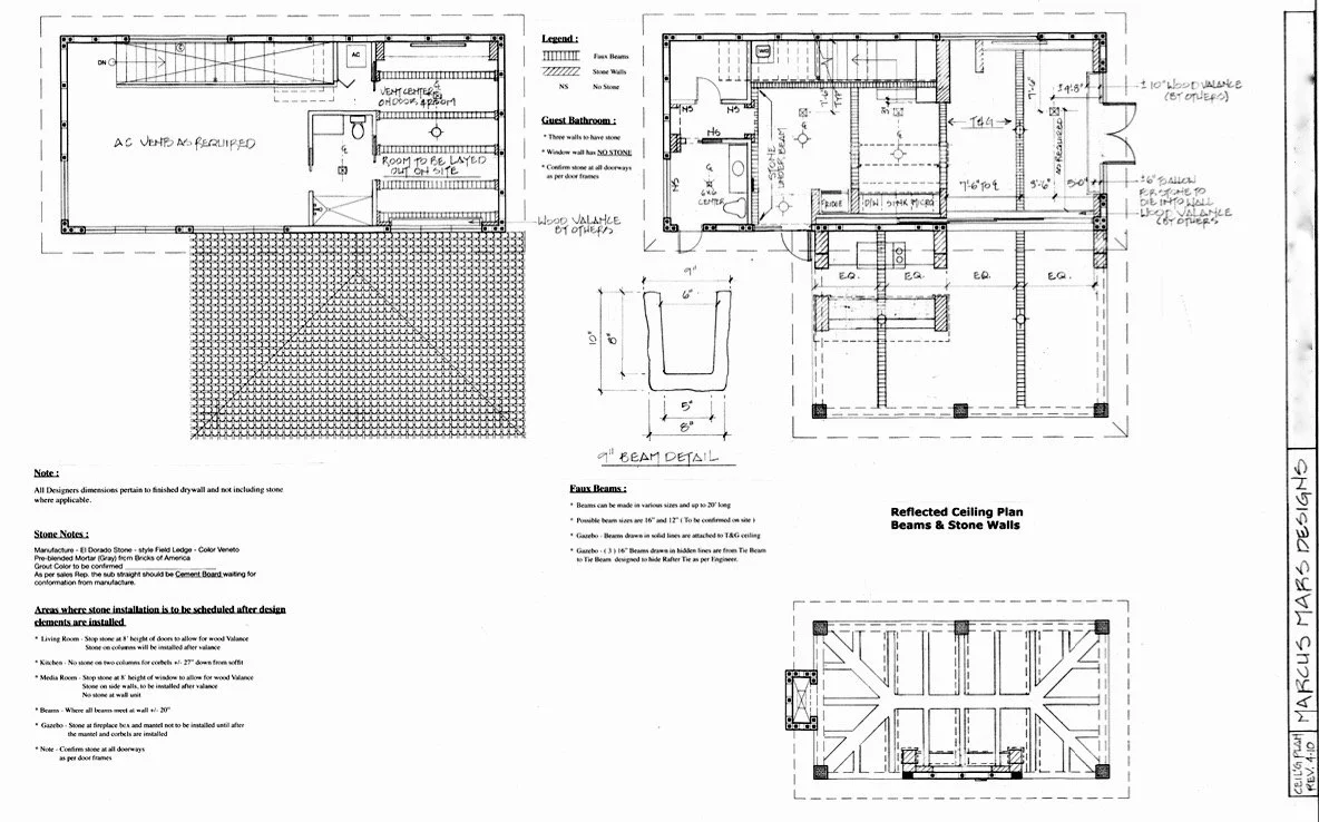
Design-Build Floor Plan Boca Raton Mediterranean Home
Design-build architectural floor plan illustrating the integrated layout, structural coordination, and Mediterranean design framework for this Boca Raton custom home.
Design-Build Mediterranean Kitchen – Boca Raton
This Mediterranean design-build kitchen features a stone arch supported by rustic columns, framing custom cabinetry and a wood-paneled refrigerator for a seamless, built-in look. Warm wood tones, natural stone textures, and handcrafted details create an authentic Old World aesthetic with modern functionality.
Design-Build Mediterranean Staircase – Boca Raton
Wood stairs with hand-painted Mediterranean tile risers create warmth and pattern, complemented by a custom wrought iron railing for classic Old World character.
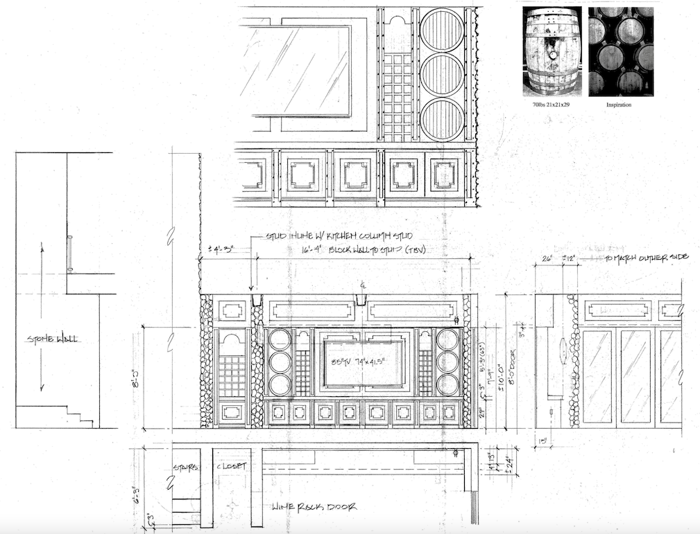
Design-Build Custom Cabinetry Wall – Boca Raton
This custom design-build cabinetry wall integrates wine barrel storage, a central TV, and built-in wine racks, with a concealed door to a private wine closet. Detailed millwork and balanced proportions create a functional focal point with Old World character.
Design-Build Mediterranean Stone Gazebo – Boca Raton
This Boca Raton design-build gazebo anchors the outdoor living space with Mediterranean stone architecture, a central fireplace, and integrated seating, dining, and bar areas. The design blends Tuscan detailing with functional outdoor living, featuring wrought iron accents, stone columns, and warm lantern lighting for a cohesive, timeless setting.
This Boca Raton design-build gazebo anchors the outdoor living space with Mediterranean stone architecture, a central fireplace, and integrated seating, dining, and bar areas. The design blends Tuscan detailing with functional outdoor living, featuring wrought iron accents, stone columns, and warm lantern lighting for a cohesive, timeless setting.
Design-Build Mediterranean Pool and Courtyard Concept – Boca Raton
Existing Pool Condition
The current pool is contemporary, defined by a flat wall and linear waterfalls, lacking architectural depth.
Mediterranean Revival Redesign Concept
Working with our architect, the design introduces an arched wall with a dolphin fountain as the focal point, creating a classic Mediterranean courtyard layout.
Integrated Outdoor Features
Sun decks, built-in seating, wall water fountain, and a private tub and shower behind the arched wall add function while maintaining symmetry and privacy.
Materials and Detail
Mediterranean pool tiles, stone elements, and layered walls bring warmth, texture, and Old World character.
Design-Build Approach
Architecture, interior design, and construction are unified, transforming the pool into a cohesive Mediterranean outdoor living space.
From client’s vision to design reality
This is the drawing from my client to illustrate his vision for his Mediterranean pool area
Design-Build Mediterranean Pool Concept – Boca Raton
A perfect reflection of Old World charm meeting South Florida living.
